7 Gramercy Place, Strathtulloh VIC
Features
350 sqm
Description
***Pre-Market Listing***
Addressed: 7 Gramercy Place
Suburb & Estate: Strathtulloh – Balmoral Estate
Completion Time: 2.5 months (approx.)
This Vaastu compliant home is a full turnkey property. meaning there are a plethora of convenient inclusions that make the move to your new house so easy, with nothing for the buyer to do but move in. With everything in a first home that you could ever want, there is little more that could be asked for. Especially with the inclusion of a double master ensuite, this is an opportunity that you do not want to miss!
Gurbaaz Sidhu & Jio Real Estate present an exclusive opportunity for buyers looking for an off the plan property under construction. This home, under construction, offers off the plan stamp duty concessions that can help buyers save BIG on stamp duty, especially for first home buyers. Moreover, this home is facing a future park/playground, and is in the heart of Melton City’s most desired suburban developments. More information below.
Details of inclusions upon completion of the house are as below:
*************SUMMARY OF FEATURES*************
***First Home Buyer Benefits***
• Massive stamp duty reduction
• $10,000 first home buyer grant
• Home Guarantee Scheme – pay deposit as low as 5%
***Particulars***
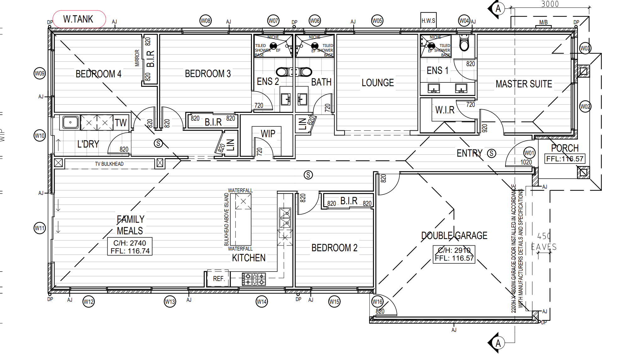
• 4 Bedrooms – 2 Masters & 2 Normal
• 3 Bathrooms – 2 Ensuites & 1 Common Bath
• 2 Car Garage with side yard access
• 2 Living Rooms – One meals & one theatre
• Fully Vaastu Compliant
***Turnkey Inclusions***
• Fully Landscaped – Backyard & Front Yard
• Exposed aggregate Driveway & Porch
• Letterbox
• Fully fenced house perimeter
• Outdoors clothes line
• Side yard entry gates
***House Features***
• Wide hallway entry
• 60mm stone bench tops
• 900mm appliances
• Wall-to-wall tiled-to-ceiling bathrooms
• Master ensuite double vanity
• Master walk-in-robe with shelving & hanging rods
• Shower Niches
• Walk-in-pantry with shelving with considerable storage
• Timber Island Bulkhead with pendants
• All bedrooms with built in robes
• Fully tiled-to-ceiling bathrooms
• Bathtub with tiled splash back
• Laminate flooring throughout
• Down lights throughout
• Zoned Refrigerated Heating & Cooling
• Colorbond roofing
• 2.34m High doors
• 2.7m High ceiling finish
***Amenities***
3 min drive to:
• The Place Cobblebank – restaurants, cafes & more (Open mid-April 2024)
• St Francis Catholic College – Cobblebank Campus (Newly Opened)
4 min drive to:
• Cobblebank Stadium – Sports clubs, facility hire, community programs & more
5 min drive to:
• Central Square Thornhill Park – IGA, pharmacies, retail spaces & more
• Cobblebank Station – Newest Vline Station in the area
• Aspire Childcare Centre
6 min drive to:
• Cobblebank Village – Coles, Jetts Fitness, hairdressers & more
• Freeway Access
***Future Developments***
• Melton Hospital under construction
• Government primary school in walking distance
• New park/playground in front of house
…So much more, contact Gurbaaz to learn more.
Before this under construction property falls out of reach, call & enquire with Gurbaaz Sidhu at 0412 871 373 to ensure you do not lose out on this exceptional opportunity.
If you are looking to sell your home in order to purchase this masterpiece, call us for a free appraisal of your property at your earliest convenience.
For a Due Diligence Checklist, please refer to the following link: http://www.consumer.vic.gov.au/duediligencechecklist.
DISCLAIMER: All dimensions provided are approximate. The information given is for general purposes only and does not constitute any representation by the vendor or agent.
Floor Plans
